3-Raum-Wohnung im 2.OG rechts B (Oelsnitz/Erzgebirge)

Gabelsberger Straße 24b, 09376 Oelsnitz/Erzgeb.
430,00 €
Kaltmiete
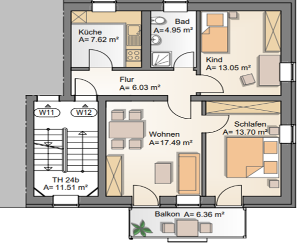
  • Zimmer 3
  • Wohnfläche 66,02m²
  • Warmmiete 575,00 €
  • Nebenkosten 1,40 €/m²
  • Baujahr 2025

Beschreibung

Eckdaten:

  • Mietpreisgebundener Wohnraum
    für Interessenten mit Wohnberechtigungsschein
  • 3-fach-verglaste Fenster
  • Fußbodenheizung
  • Luft-Wärme-Pumpe mit Speicher
    für die Heizung
  • durch den Mieter selbstregulierende Warmwasserversorgung
    mittels elektrischer Durchlauferhitzer
  • PV-Anlage für Luft-Wärme Pumpe
  • Wärmeverbundsystem für den
    ganzen Baukörper nach KfW 55
  • Bad gefliest
  • Balkon
  • Kellerabteil pro Wohnung
  • Mediale Versorgung über Datenkabel
  • PKW-Stellmöglichkeiten in der Nähe
  • Einkaufsmöglichkeiten in der Nähe
  • Umgebung mit großzügigen Grünflächen

Warum eine Wohnung mit Wohnberechtigungsschein?

  • Bezahlbare Mieten: Genießen Sie attraktive Mietpreise, die speziell für berechtigte Mieter angeboten werden.
  • Vielfältige Auswahl: Von gemütlichen Einzimmerwohnungen bis hin zu geräumigen Familienwohnungen – wir haben das passende Angebot für Sie.
  • Zentrale Lagen: Viele unserer Wohnungen befinden sich in attraktiven Stadtteilen mit guter Anbindung an öffentliche Verkehrsmittel, Einkaufsmöglichkeiten und Freizeitangeboten.

Gesetzliche Grundlagen in Sachsen
In Sachsen regelt das Sächsische Wohnraumförderungsgesetz (SächsWoFG) die Vergabe von Wohnberechtigungsscheinen. Hier sind einige wichtige Punkte:

  • 1. Anspruch auf einen Wohnberechtigungsschein: Personen mit geringem Einkommen, die in Sachsen wohnen oder dort wohnen möchten, können einen Wohnberechtigungsschein beantragen. Die Einkommensgrenzen sind im Gesetz festgelegt und variieren je nach Haushaltsgröße.
  • 2. Mietobergrenzen: Die Mieten für Wohnungen, die mit einem Wohnberechtigungsschein bezogen werden, dürfen bestimmte Obergrenzen nicht überschreiten. Diese Grenzen sind ebenfalls im Sächsischen Wohnraumförderungsgesetz festgelegt und sollen sicherstellen, dass die Wohnungen für berechtigte Mieter erschwinglich bleiben.
  • 3. Antragstellung: Der Antrag auf einen Wohnberechtigungsschein kann bei der zuständigen Gemeinde- oder Stadtverwaltung gestellt werden. Hierbei sind Nachweise über das Einkommen und gegebenenfalls weitere Unterlagen erforderlich.

Ihr Weg zu einer neuen Wohnung:

  1. Informieren Sie sich: Prüfen Sie, ob Sie einen Wohnberechtigungsschein beantragen können.
  2. Durchstöbern Sie unser Angebot: Besuchen Sie unsere Website oder kontaktieren Sie uns direkt, um die verfügbaren Wohnungen zu entdecken.
  3. Besichtigen und einziehen: Vereinbaren Sie einen Besichtigungstermin und finden Sie Ihr neues Zuhause!

Besichtigungstermine

🔑 Lassen Sie sich diese Chance nicht entgehen und kontaktieren Sie uns noch heute! Ihr neues Zuhause wartet auf Sie!

📞 [037298 338-0]
🌐 [http://wgo-oelsnitz-erzgebirge.de]

Wir freuen uns darauf, Sie bei Ihrer Suche nach Ihrem neuen Zuhause zu unterstützen!🏠❤️

 

Details

  • Kaution: 860,00€
  • Bezug: ab 01.12.2025
  • Geschoss: 2. OG rechts
  • Heizkosten: 0,80 €/qm